Zur Navigation wechseln Zum Inhalt wechseln Zum Footer wechseln

Langfristig vermietetes Hotel-Appartment im Batschari-Palais

ImmoNr
6802
Objektart
Wohnung
Objekttyp
Eigentumswohnung
Vermarktungsart
Kauf
PLZ
76530
Ort
Baden-Baden
Land
Deutschland
Etage
2
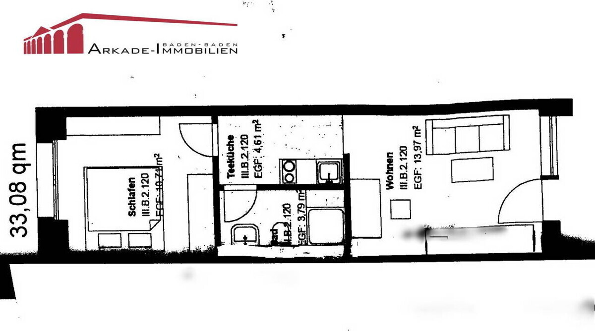
Wohnfläche
ca. 33 m²
Anzahl Zimmer
2
Anzahl Schlafzimmer
1
Anzahl Badezimmer
1
Befeuerung
Gas
Etagenzahl
4
Fahrstuhl
Ja
Kaufpreis
115.000,00 €
Außen-Provision
3,57 %

Zur Immobilie

Zum Verkauf steht dieses exklusive Hotelappartement im Batschari Palais als Kapitalanlage. Das Batschari Palais war ursprünglich eine Zigarettenfabrik, die August Batschari 1834 gründete. Das Gebäude wurde von 2007 – 2009 kernsaniert und umgestaltet. Der historischer Charakter blieb erhalten und wurde durch die aufwändige Gestaltung perfekt in Szene gesetzt.
Ein Teilbereich des Gebäudes mit insgesamt 70 Appartements wurde als Suiten-Hotel konzipiert, zu dem die 33,08m² große Suite gehört. Diese ist langfristig an den Hotelbetreiber vermietet, der sich um die Vermarktung und den laufenden Betrieb kümmert.
Die monatliche Pacht in Höhe von 405,87 € (siehe Rubrik sonstige Angaben) wird vom Hotelbetreiber vergütet und ist unabhängig davon, ob die Hotelsuite vermietet ist oder nicht.

Nutzungsart
Wohnen
Baujahr lt. Energieausweis
1834
wesentlicher Energieträger
Gas

Das Hotel befindet sich im Zentrum von Baden-Baden, in direkter Nähe zum Festspielhaus. Das Hotel ist ein idealer Ausgangspunkt, um das Stadtzentrum mit zahlreichen Sehenswürdigkeiten wie dem Kurhaus mit dem berühmten Casino, das Bäderviertel und die Thermen in wenigen Minuten zu erreichen. Verkehrstechnisch ist die Lage ebenfalls ideal (Entfernung zum Zubringer 1 km, Autobahn 5 km, Baden Airpark 20 km, Karlsruhe 25 km).

Die Pacht setzt sich wie folgt zusammen:

+ 425,96 € Monatliche Pacht
+ 137,78 € Betriebskosten
– 195,00 € Hausgeld
– 15,50 € Erhaltungsrücklage
– 27,37 € Verwaltungsgebühr

= 325,87 € monatliche Auszahlung

Ihr Ansprechpartner

Dieter Mächtel

Herr Dieter Mächtel

Arkade Immobilien GmbH

Tel.:
+49(7221) 373080
E-Mail:
anfrage@lead.arkade-immobilien.com

Lange Str. 94
76530 Baden-Baden

Weitere Immobilien

76530 Baden-Baden

Schöne 4-Zimmer Wohnung mit sonnigem Balkon in Zentrumslage

ImmoNr
7272
Objektart
Wohnung
Objekttyp
Eigentumswohnung
Vermarktungsart
Kauf
Anzahl Zimmer
4
Anzahl Schlafzimmer
3
Grundstücksgröße
ca. 640 m²
Wohnfläche
ca. 106 m²

76530 Baden-Baden

Attraktives Appartement am Festspielhaus

ImmoNr
7322
Objektart
Wohnung
Objekttyp
Eigentumswohnung
Vermarktungsart
Kauf
Anzahl Zimmer
1
Wohnfläche
ca. 26 m²

76530 Baden-Baden

Exklusive Loft-Wohnung im Batschari Palais zu verkaufen

ImmoNr
7349
Objektart
Wohnung
Objekttyp
Eigentumswohnung
Vermarktungsart
Kauf
Anzahl Zimmer
2
Anzahl Schlafzimmer
1
Wohnfläche
ca. 88 m²

76530 Baden-Baden

Kapitalanlage: Langfristig vermietetes Hotel-Appartment im Batschari-Palais

ImmoNr
7352
Objektart
Wohnung
Objekttyp
Eigentumswohnung
Vermarktungsart
Kauf

76530 Baden-Baden

Stilvolle Wohnung mit Dachterrasse im Batschari-Palais

ImmoNr
7369
Objektart
Wohnung
Objekttyp
Eigentumswohnung
Vermarktungsart
Kauf
Anzahl Zimmer
3
Anzahl Schlafzimmer
2
Wohnfläche
ca. 94 m²

    Ihre Anfrage zu der Immobilie „Langfristig vermietetes Hotel-Appartment im Batschari-Palais“ (6802)

    * Pflichtfelder